ORMOŽ - novogradnja stanovanje na ključ / stanovanje št. B-S7

Ormož

Lastnosti

Prodaja
Stanovanje
Etažno stanovanje
98.90 m2
5- sobno
0.00 m 2
3
1
3
0
Bivanje
01.10.2025

Opis

               Na obrobju mesta Ormož sta v izgradnji dva moderno zasnovana bloka. Lokacija objektov je v neposredni bližini vse potrebne infrastrukture (šola, vrtec, zdravstveni dom, parki, trgovine), obenem pa je idealna in idilična za vse ljubitelje narave.

Lokacija je posebna, saj ponuja hiter dostop do vse potrebne infrastrukture, peš ali z avtomobilom, obenem pa je projekt zasnovan na način, da je pozidanost pripadajoče parcele blokoma zelo majhna, posledično je na voljo veliko zelenih površin, kar dvigne kakovost bivanja na višji nivo.

Moderna in arhitekturno dodelana objekta bosta v toplih zunanjih barvah in z velikimi okni, kar zagotavlja veliko dnevne svetlobe vsakemu stanovanju.

Stanovanjem v pritličju pripadajo terase površin 10,8 m2 do 18,8 m2, stanovanjem v nadstropjih pa balkoni.

Stanovanjske enote imajo skupne površine od 59,4 m2 do 111,8 m2.

Tlorisi stanovanj so premišljeni, moderno zasnovani. Objekta sta zasnovana kot P+1+2. Vsakemu stanovanju pripada ločena shramba in parkirišče ob bloku, katero bo opremljeno s parkirno zaporo. Ogrevanje zagotavlja toplotna črpalka zrak/voda s talnim gretjem. Notranje enote bodo locirane v shrambah, zunanje enote v namenskem prostoru na podstrešju.

Stanovanja bodo zgrajena na ključ. Kopalnica bo obdelana s keramiko z vgrajeno sanitarno opremo. Talne obloge bodo vinil in keramika.
Okna bodo PVC s trojno zasteklitvijo, srednje velika in pokončna s senčili. Nad okni na fasadi bodo izvedene kasete za senčila v skladu s projektno dokumentacijo.

Ob objektih so predvidene zelene površine s hortikulturno zasaditvijo, pohodne površine ob objektu bodo tlakovane ali asfaltirane.

Vselitev in prevzem stanovanj: september 2025.

Slike zunanjosti objekta so dejanske, slike notranjosti pa so simbolične. Predstavljajo investitorjev predlog dizajna. Oprema in pohištvo nista vključena v ceno.
            

Dodatni podatki

Balkon
Dvigalo
Klet
WC za goste
Zunanje parkirno mesto
Gradbeno dovoljenje
Izpisek iz zemljiške knjige
Tlorisi
Katasterski načrt
Izjava skupnosti v primeru predkupne pravice

Lokacija

                                   Ormož-Lokacija naselja Vrtnarska se nahaja na obrobju mesta Ormož, v mirnem in z zelenjem obdanim okolju, a z odličnim dostopom do vsega, kar potrebujete za udobno vsakdanje življenje.

V neposredni bližini so:
- Zdravstveni dom, lekarna
- Osnovna šola in vrtec
- Občina, pošta, banke
- Trgovine in storitveni lokali
- Bližina gozda in zelenih sprehajalnih poti

Odlična prometna povezava:
- Hiter dostop do obvoznice in glavnih prometnic
- Mirna soseska, primerna za družine, pare ali posameznike, ki iščejo ravnovesje med urbanim udobjem in naravo
                            
Za točno lokacijo kontaktirajte ponudnika.

Splošni stroški

232.536,00 €
Da

Stanje objekta

Prva vselitev
2025
Neopremljeno

Oprema

               Stanovanja se prodajajo na ključ.

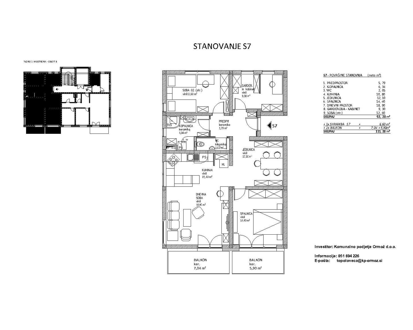
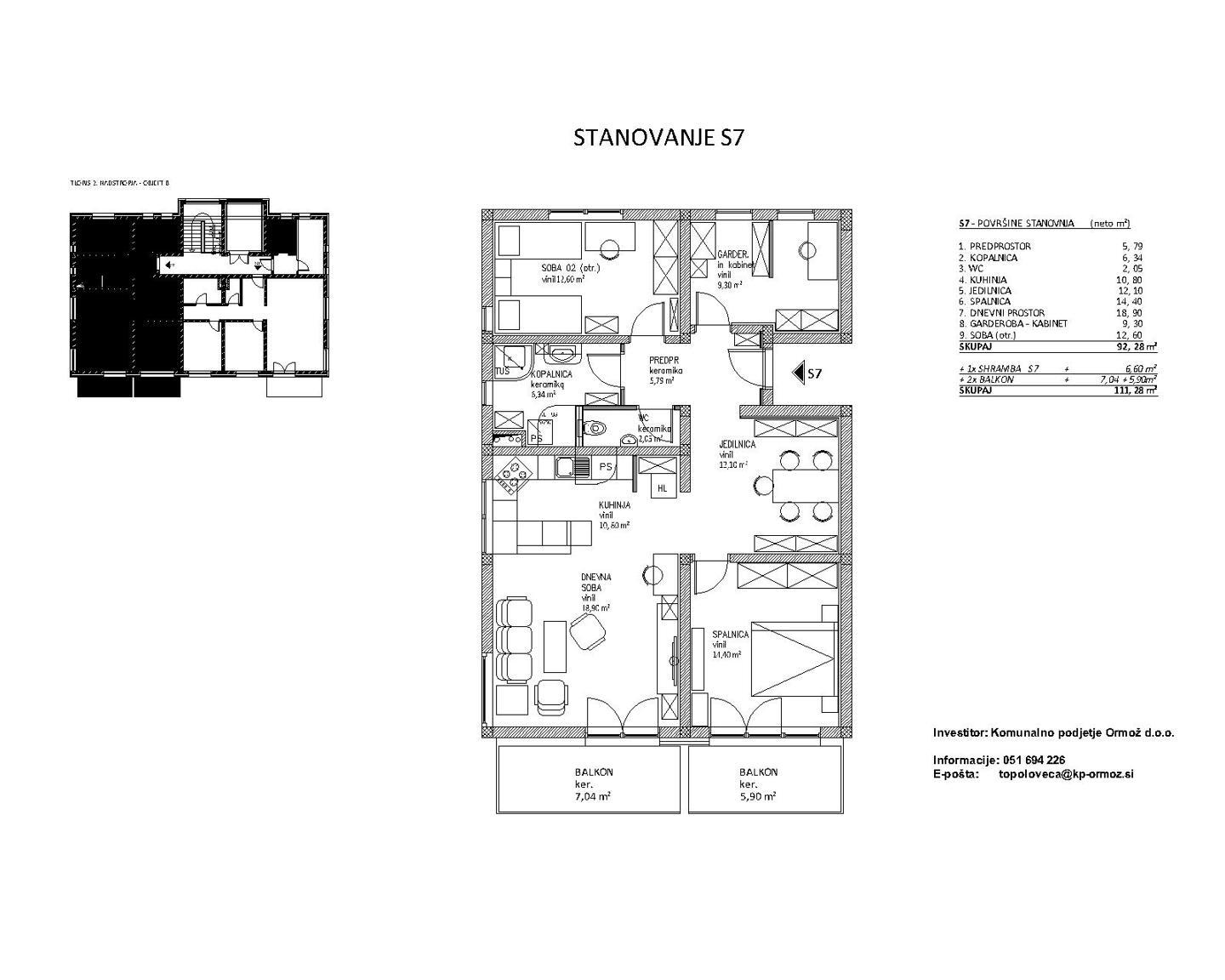
Stanovanje št. B-S7
Nadstropje: 2
Bivalna površina: 98,9 m²
Balkonalkon: 12,9 m²
Skupna kvadratura: 124,3 m²
Lastno parkirišče: DA
Cena z DDV: 232.536,00

Stanovanja v blokih A in B bodo kupcem predana v zaključeni fazi, ki vključuje:

- Popolnoma izvedene inštalacije (elektrika, voda, odtoki)
- Zaključene talne obloge (gotovi finalni podi)
- Gotovi notranji opleski
- Vgrajeno osnovno sanitarno opremo (npr. WC školjka)
- Kakovostna zunanja in notranja stavbna pohištva
- Vsako stanovanje ima ločen vhod, shrambo ter lastno parkirno mesto tik ob objektu
- Stanovanja v pritličju imajo prostor za terase, v višjih nadstropjih pa balkone

Gradnja poteka po načelih energetske učinkovitosti z uporabo naravi prijaznih materialov, kar zagotavlja udobje bivanja in nižje stroške skozi vse leto.

Kupec nosi samo strošek vknjižbe lastninske pravice. Stanovanja so dokončana do pete gradbene faze, torej na ključ. V kopalnici manjka tuš kabina in umivalnik. Izvedena je kanaleta za tuš in WC školjka, kopalnica je finalizirana s keramiko.
            

Dodatni podatki

                  - Investitor: Komunalno podjetje Ormož d.o.o.
- Lokacija: Hardek, Ormož
- Stanovanja: 19 enot (v dveh blokih A in B), velikosti od 59,4 m² do 111,8 m²
- Pripadajoče: shramba + 1 parkirno mesto / stanovanje
- Zaključek gradnje: predvidoma september 2025
- Na voljo so stanovanja z balkoni ali terasami
- Energetsko učinkovita gradnja z naravi prijaznimi materiali

Stanovanja primerna za trajno bivanje ali investicijo
               

Energetska izkaznica

0.00 kWh/m2
Da

Vir ogrevanja

Toplotna črpalka

Vrsta ogrevanja

Toplotna črpalka

Pregled povpraševanja

23.04.2025
157
0
0

Podobni oglasi