ORMOŽ - novogradnja stanovanje na ključ - stanovanje št. A-S10

Ormož

Lastnosti

Prodaja
Stanovanje
Etažno stanovanje
77.50 m2
3- sobno
0.00 m 2
2
1
3
2
Bivanje
01.10.2025

Opis

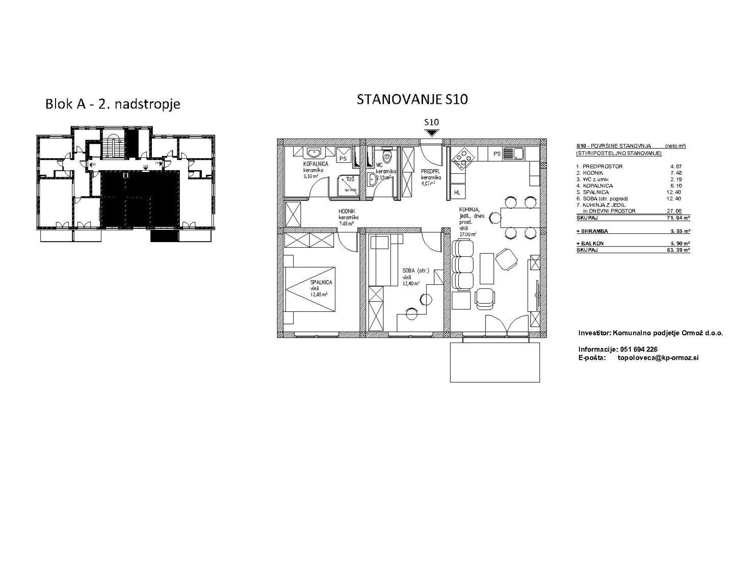
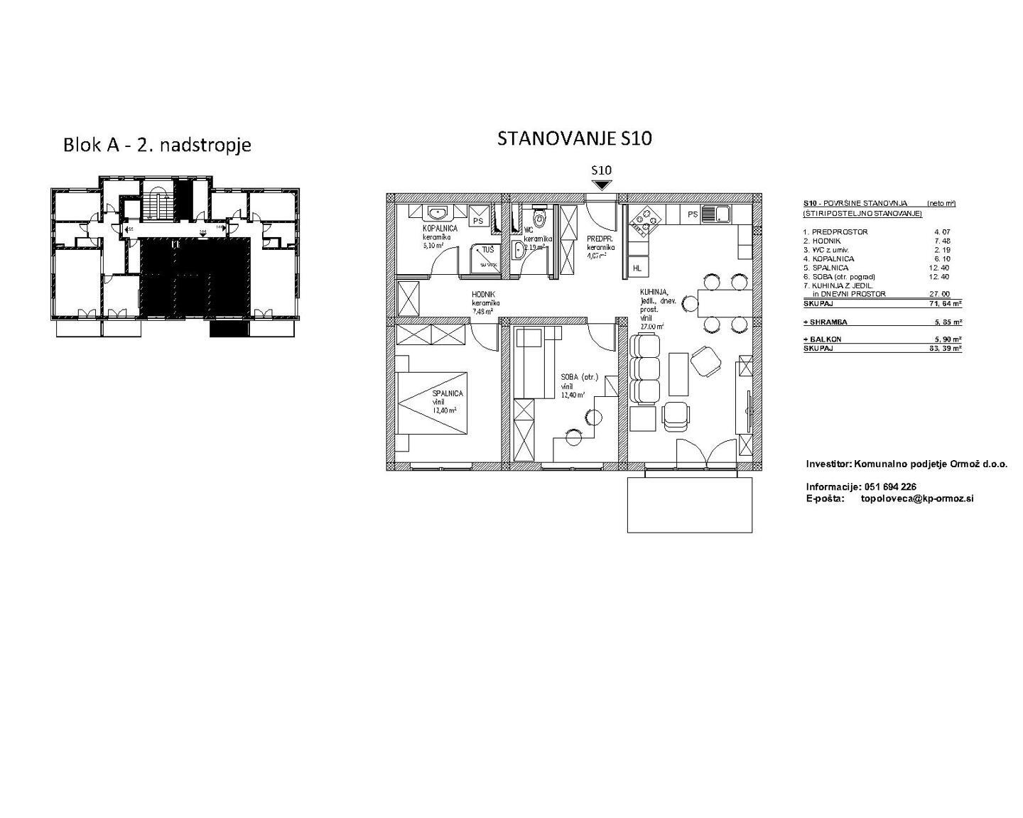
               Stanovanje št. A-S10
Nadstropje: 2
Bivalna površina: 77,5 m²
Balkon: 5,9 m²
Skupna kvadratura: 95,9 m²
Lastno parkirišče: DA
Cena z DDV: 193.750,00

Investitor: Komunalno podjetje Ormož d.o.o.

Stanovanja se prodajajo na ključ.

Na atraktivni in dostopni lokaciji v Ormožu je v gradnji sodobno večstanovanjsko naselje VRTNARSKA, ki bo zajemalo dva večstanovanjska objekta (Blok A in B) z 19 funkcionalno zasnovanimi stanovanji. Na voljo so enote različnih velikosti – od 59,4 m² do 111,8 m², ki bodo navdušile tako posameznike kot družine.

Vsakemu stanovanju pripada lastno parkirno mesto in shramba, enote v pritličju imajo prostor za teraso, enote v nadstropjih pa udobne balkone. Stanovanja bodo predana v zaključni fazi gradnje (zaključeni podi, sanitarna oprema, opleski, vgrajene inštalacije), kar kupcu omogoča hiter in preprost vselitveni proces.

Zaključek gradnje je predviden v septembru 2025, zato je zdaj odlična priložnost za rezervacijo sodobnega doma v novem stanovanjskem okolju.
            

Dodatni podatki

Balkon
Dvigalo
Zunanje parkirno mesto
Gradbeno dovoljenje
Izpisek iz zemljiške knjige
Tlorisi
Katasterski načrt
Izjava skupnosti v primeru predkupne pravice

Lokacija

                                   Ormož-Lokacija naselja Vrtnarska se nahaja na obrobju mesta Ormož, v mirnem in z zelenjem obdanim okolju, a z odličnim dostopom do vsega, kar potrebujete za udobno vsakdanje življenje.

V neposredni bližini so:
- Zdravstveni dom, lekarna
- Osnovna šola in vrtec
- Občina, pošta, banke
- Trgovine in storitveni lokali
- Bližina gozda in zelenih sprehajalnih poti

Odlična prometna povezava:
- Hiter dostop do obvoznice in glavnih prometnic
- Mirna soseska, primerna za družine, pare ali posameznike, ki iščejo ravnovesje med urbanim udobjem in naravo
                            
Za točno lokacijo kontaktirajte ponudnika.

Splošni stroški

193.750,00 €
Da

Stanje objekta

Prva vselitev
2025
Neopremljeno

Oprema

               Stanovanja se prodajajo na ključ.

Stanovanje št. A-S10
Nadstropje: 2
Bivalna površina: 77,5 m²
Balkon: 5,9 m²
Skupna kvadratura: 95,9 m²
Lastno parkirišče: DA
Cena z DDV: 193.750,00

Stanovanja v blokih A in B bodo kupcem predana v zaključeni fazi, ki vključuje:

- Popolnoma izvedene inštalacije (elektrika, voda, odtoki)
- Zaključene talne obloge (gotovi finalni podi)
- Gotovi notranji opleski
- Vgrajeno osnovno sanitarno opremo (npr. WC školjka)
- Kakovostna zunanja in notranja stavbna pohištva
- Vsako stanovanje ima ločen vhod, shrambo ter lastno parkirno mesto tik ob objektu
- Stanovanja v pritličju imajo prostor za terase, v višjih nadstropjih pa balkone

Gradnja poteka po načelih energetske učinkovitosti z uporabo naravi prijaznih materialov, kar zagotavlja udobje bivanja in nižje stroške skozi vse leto.
            

Dodatni podatki

                  - Investitor: Komunalno podjetje Ormož d.o.o.
- Lokacija: Hardek, Ormož
- Stanovanja: 19 enot (v dveh blokih A in B), velikosti od 59,4 m² do 111,8 m²
- Pripadajoče: shramba + 1 parkirno mesto / stanovanje
- Zaključek gradnje: predvidoma september 2025
- Na voljo so stanovanja z balkoni ali terasami
- Energetsko učinkovita gradnja z naravi prijaznimi materiali

Stanovanja primerna za trajno bivanje ali investicijo
               

Energetska izkaznica

0.00 kWh/m2
Da

Vir ogrevanja

Toplotna črpalka

Vrsta ogrevanja

Toplotna črpalka

Pregled povpraševanja

18.04.2025
873
0
0

Podobni oglasi